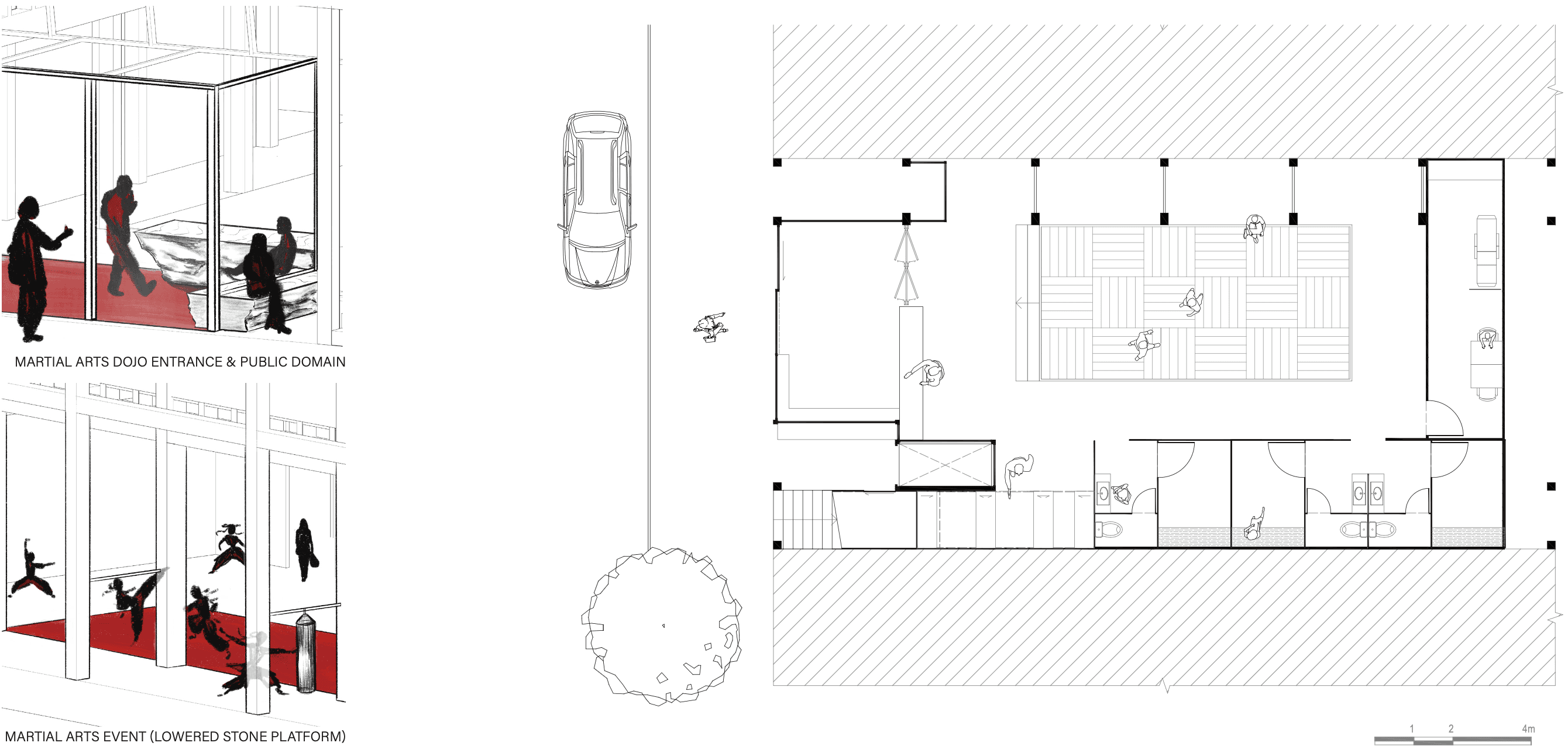
Back to Back, Face to Face
The designing of the Queer Archive and Exhibition space, along with the Martial Art Dojo together pursue a genuine exchange of knowledge, care and understanding. Amidst societal turbulence, where individuals’ identity and belonging are continuously questioned and confronted, this architecture seeks to become a physical invitation offering profound conversations beyond surface activism, as well as fostering understanding and acceptance. Kung Fu as a peaceful form of Martial Arts that values harmony, respect and balance within oneself and others is greatly suitable for the concept. Through physical connections, and push and pull during practice, practitioners can develop a better understanding of themselves as well as each other, predicting and accepting who they are as humans. This architecture becomes a personified “body” embodying queerness and challenging the idea of normality and inviting interactions.

Year
2024
Focus
Architecture of Co-existence
Site
Sydney, NSW
/ Concept
This queer archive brings personal stories into the local Sydney context, highlighting the experiences of both the Sydney Queer community and the Queer Indigenous community. Centred around the iconic Mardi Gras Parade, it focuses on wearables and costumes as symbols of pride, identity, and resistance. Visitors are invited to contribute their own used costumes to the exhibition, creating a living, evolving collection that celebrates community and solidarity.
To honour connection to Country, decorative elements such as gemstones from donated costumes are embedded into stone flooring platforms. These are illuminated at night, symbolically bringing the stars and night sky closer to the people and grounding the space in shared cultural and natural heritage.
Material exploration is central to the design. Small pebbles and larger suspended stone pieces, bound by chains and wires, express the fragile yet enduring relationships within and beyond the queer community. These materials highlight the tension, care, and interconnectedness that shape queer experiences. The pebbles also reflect the intricacy of wearable items collected in the archive—each one a delicate yet powerful representation of personal history.
This design not only showcases a celebration of pride and beauty, but also acts as a reminder of the importance of empathy, respect, and communication in nurturing inclusive and supportive environments.
Conceptual Models




/ Ideas | Collaborated w. Cheng Cheng
Vignettes

Spatial Arrangement


/ Design
Movable Panels

Movable Joining Details

Sandstone Joining

Exploded Axonometric

Ground Floor Plan

First Floor Plan

Second Floor Plan

Third Floor Plan

Cross Section

Section








Back to Back, Face to Face
The designing of the Queer Archive and Exhibition space, along with the Martial Art Dojo together pursue a genuine exchange of knowledge, care and understanding. Amidst societal turbulence, where individuals’ identity and belonging are continuously questioned and confronted, this architecture seeks to become a physical invitation offering profound conversations beyond surface activism, as well as fostering understanding and acceptance. Kung Fu as a peaceful form of Martial Arts that values harmony, respect and balance within oneself and others is greatly suitable for the concept. Through physical connections, and push and pull during practice, practitioners can develop a better understanding of themselves as well as each other, predicting and accepting who they are as humans. This architecture becomes a personified “body” embodying queerness and challenging the idea of normality and inviting interactions.

Year
2024
Focus
Architecture of Co-existence
Site
Sydney, NSW
/ Concept
This queer archive brings personal stories into the local Sydney context, highlighting the experiences of both the Sydney Queer community and the Queer Indigenous community. Centred around the iconic Mardi Gras Parade, it focuses on wearables and costumes as symbols of pride, identity, and resistance. Visitors are invited to contribute their own used costumes to the exhibition, creating a living, evolving collection that celebrates community and solidarity.
To honour connection to Country, decorative elements such as gemstones from donated costumes are embedded into stone flooring platforms. These are illuminated at night, symbolically bringing the stars and night sky closer to the people and grounding the space in shared cultural and natural heritage.
Material exploration is central to the design. Small pebbles and larger suspended stone pieces, bound by chains and wires, express the fragile yet enduring relationships within and beyond the queer community. These materials highlight the tension, care, and interconnectedness that shape queer experiences. The pebbles also reflect the intricacy of wearable items collected in the archive—each one a delicate yet powerful representation of personal history.
This design not only showcases a celebration of pride and beauty, but also acts as a reminder of the importance of empathy, respect, and communication in nurturing inclusive and supportive environments.
Conceptual Models




/ Ideas | Collaborated w. Cheng Cheng
Vignettes

Spatial Arrangement


/ Design
Movable Panels

Movable Joining Details

Sandstone Joining

Exploded Axonometric

Ground Floor Plan

First Floor Plan

Second Floor Plan

Third Floor Plan

Cross Section

Section








Back to Back, Face to Face
The designing of the Queer Archive and Exhibition space, along with the Martial Art Dojo together pursue a genuine exchange of knowledge, care and understanding. Amidst societal turbulence, where individuals’ identity and belonging are continuously questioned and confronted, this architecture seeks to become a physical invitation offering profound conversations beyond surface activism, as well as fostering understanding and acceptance. Kung Fu as a peaceful form of Martial Arts that values harmony, respect and balance within oneself and others is greatly suitable for the concept. Through physical connections, and push and pull during practice, practitioners can develop a better understanding of themselves as well as each other, predicting and accepting who they are as humans. This architecture becomes a personified “body” embodying queerness and challenging the idea of normality and inviting interactions.

Year
2024
Focus
Architecture of Co-existence
Site
Sydney, NSW
/ Concept
This queer archive brings personal stories into the local Sydney context, highlighting the experiences of both the Sydney Queer community and the Queer Indigenous community. Centred around the iconic Mardi Gras Parade, it focuses on wearables and costumes as symbols of pride, identity, and resistance. Visitors are invited to contribute their own used costumes to the exhibition, creating a living, evolving collection that celebrates community and solidarity.
To honour connection to Country, decorative elements such as gemstones from donated costumes are embedded into stone flooring platforms. These are illuminated at night, symbolically bringing the stars and night sky closer to the people and grounding the space in shared cultural and natural heritage.
Material exploration is central to the design. Small pebbles and larger suspended stone pieces, bound by chains and wires, express the fragile yet enduring relationships within and beyond the queer community. These materials highlight the tension, care, and interconnectedness that shape queer experiences. The pebbles also reflect the intricacy of wearable items collected in the archive—each one a delicate yet powerful representation of personal history.
This design not only showcases a celebration of pride and beauty, but also acts as a reminder of the importance of empathy, respect, and communication in nurturing inclusive and supportive environments.
Conceptual Models




/ Ideas | Collaborated w. Cheng Cheng
Vignettes

Spatial Arrangement


/ Design
Movable Panels

Movable Joining Details

Sandstone Joining

Exploded Axonometric

Ground Floor Plan

First Floor Plan

Second Floor Plan

Third Floor Plan

Cross Section

Section









